I-1B濃漿泵結構分析圖及安裝注意事項
時間:2014/11/26 來源:浙江揚子江泵業有限公司
I-1B濃漿泵產品概述
I-1B濃漿泵是一種新型的輸送液體的機械,具有結構簡單、工作安全可靠、使用維修方便、出液連續均勻、壓力穩定等優點。我單位生產的濃漿泵凡接觸物料的金屬零件均選用優質不銹耐酸鋼制作,軸材料2cr13襯筒采用無毒無味的橡膠、工作溫度可達100℃,可用于輸送食品漿料和粘度10000泊斯卡.秒含有固體顆粒或膠塊的溶液漿,懸浮液的腐蝕性介質。廣泛于食品、冶金、建筑、制藥、化工等工業部門。
I-1B濃漿泵工作原理
濃漿螺桿泵是一種單螺桿式輸運泵、它的主要工作部件是偏心螺旋體的螺桿(稱轉子)和內表面呈雙線螺旋面的螺桿襯套(稱定子)。其工作原理是當電動機帶動泵軸轉動時,螺桿一方面繞本身的軸線旋轉,另-方面它又沿襯套內表面滾動,于是形成泵的密封腔室。螺桿每轉-周,密封腔中的液體向前推進-個螺距。隨著螺桿的連續傳動,液體以螺旋形方式從一個密封腔壓向另一個密封腔,后擠出泵體。
注:螺桿泵所使用不同的介質應采用不同的橡膠
|
編號
|
名稱
|
![]() |
|
1
|
電機
|
|
|
2
|
連軸器
|
|
|
3
|
泵體
|
|
|
4
|
泵電機座
|
|
|
5
|
螺桿軸
|
|
|
6
|
橡膠套
|
|
|
7
|
銷帽
|
|
|
8
|
軸承
|
|
|
9
|
空心軸
|
|
|
10
|
墊料壓子
|
|
|
1l
|
繞軸
|
|
|
12
|
三通
|
|
|
13
|
銷帽
|
|
|
14
|
長筒
|
|
|
15
|
進口
|
I-1B系列單螺桿濃漿泵由電動機、聯軸器、泵和底座四個部分組成(見附圖)。
配用的動力采用Y系列三相異步電動機(六極)。
聯軸器采用水泵用爪型彈性聯軸器。
化工泵由泵殼、空心軸、萬向鉸接頭、繞軸、螺桿、襯套、軸封裝置和出料口等組成,螺桿的斷面為圓形、襯套斷面為橢圓形,其內表面為雙螺旋面。
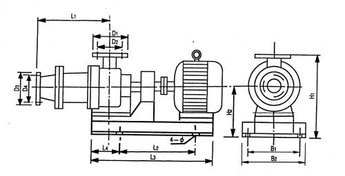
I-1B濃漿泵安裝尺寸圖

I-1B濃漿泵安裝尺寸表
|
型號/口徑
|
L1
|
L2
|
L3
|
L4
|
L5
|
H1
|
H2
|
B1
|
B2
|
φ
|
D1
|
D2
|
D3
|
D4
|
|
I-1B25
|
250
|
455
|
620
|
85
|
45
|
225
|
140
|
160
|
190
|
14
|
115
|
85
|
115
|
85
|
|
I-1B(老型)25
|
350
|
495
|
680
|
90
|
55
|
250
|
160
|
150
|
190
|
14
|
115
|
85
|
115
|
85
|
|
I-1B40
|
275
|
515
|
830
|
215
|
90
|
282
|
160
|
220
|
250
|
14
|
145
|
110
|
145
|
110
|
|
I-1B(老型)40
|
410
|
720
|
950
|
120
|
55
|
330
|
200
|
265
|
300
|
14
|
145
|
110
|
145
|
110
|
|
I-1B50
|
370
|
720
|
950
|
120
|
55
|
330
|
200
|
265
|
300
|
14
|
160
|
125
|
160
|
125
|
|
I-1B(老型)50
|
410
|
720
|
950
|
120
|
55
|
330
|
200
|
265
|
300
|
14
|
160
|
125
|
160
|
125
|
|
I-1BB65
|
410
|
720
|
950
|
120
|
55
|
330
|
200
|
265
|
300
|
14
|
180
|
145
|
180
|
145
|
|
I-1B75
|
450
|
820
|
1100
|
155
|
55
|
385
|
220
|
285
|
320
|
16
|
195
|
160
|
195
|
160
|
|
I-1B(老型)75
|
500
|
820
|
1200
|
230
|
115
|
410
|
230
|
295
|
330
|
16
|
195
|
160
|
195
|
160
|
|
I-1B100
|
500
|
820
|
1200
|
230
|
115
|
410
|
230
|
295
|
330
|
16
|
215
|
180
|
215
|
180
|
|
I-1B125
|
500
|
820
|
1200
|
230
|
115
|
410
|
230
|
295
|
330
|
16
|
245
|
2lO
|
245
|
210
|
|
I-1B150
|
|
|
|
|
|
|
|
|
|
|
|
|
|
|
I-1B濃漿泵安裝注意事項
根據泵的總圖和說明書所提供的安裝尺寸澆注基礎和確定地腳螺栓的位置,-般巾青況下不宜改變進口方向。
基礎面應使用水平儀校平,待基礎的水泥凝固后將泵裝在基礎上。電機軸和泵軸的同軸度。兩軸線偏移不超過±0.2毫米。倘若其軸線不重合,就會產生振動使軸承發熱,甚至損壞泵。
泵的吸人和排出管道應有自己和支架,-般不允許泵體承受管路的重量,在泵處于倒罐工作時可以不裝底閥,但應在吸人管路上裝控制閥和過濾裝置,以防雜物吸人泵內。泵安裝在高于液面位置時,應在吸人管端裝底閥,底閥喉口面積應大于吸人管截面積的百分之五十。
泵安裝前一定要徹底清除管足各內的雜物,如:焊渣、金屬屑等,以免泵起動時被吸人造成事故。
I-1B濃漿泵應用實例
本系列濃漿泵接觸物的零件均選用優質不銹鋼,螺桿襯套用中硬度橡膠制作,因而本泵適用于食品加工行業和制藥、化工等行業使用。例如
1.制糖廠的糖蜜、糖汁、庶渣二甜菜渣的輸送;
2.罐頭廠的、食品廠的奶粉、淀粉、蜂蜜、咖啡、牛奶、奶油、食用油、各種維生素液、麥芽糖、蕃茄醬、果醬、蛋黃醬、冰淇淋等的裝料和輸送;
3.釀造酒廠的酒類飲料、香料、發酵液的投料配料,壓濾機裝料糧食廢渣的輸送;
4.魚類加工廠的魚肝油、魚油、魚松、魚渣的輸送;
5.果品加工廠糖汁、果汁的輸送、柑桔、水果的搗爛,填料機的加料等;
6.糧油加工廠的食油、大米及玉米淀粉等的裝填料及輸送;
7.肉類加工廠、屠宰物;油脂、肉油攛取、裝箱、廢液的輸送;
8.制藥廠:各種維生素液、藥液、乳劑的加料運輸,懸浮液、鹽水、鹽污泥、藥渣等輸送;
9.化學工業:酸、堿液的輸送,各種懸浮液、油脂、膠液、各種化學染料、油漆、各種粘合劑、軟膏、漿料的投料、配料和輸送,尤其是--@離心式泵無法輸送的各種高粘度物料、或帶固體顆粒和物料本泵都能輸送;
10.印刷油墨的配料輸送;
1.造紙廠的紙漿、墨液的輸送;
12.石油化工廠的油類產品,油脂、廢液污泥的輸送;
13.乙炔站電石污泥的輸送;
14.建筑行業輸送灰漿、石灰乳、砂漿、水泥漿等;
15.可用著并泵抽水、飼料加工過程中的輸送及裝投類;
16.廣泛用于工業和生活的污水、污泥處理,污水中通常含有許多懸浮物有一定腐蝕性和粘度,往往含有固體顆粒,固而使用濃漿泵輸送是合適的;
17.用于原子能發射站的污染水、污染液和其它物料的輸送;
18.礦井排污水、污泥。
此外在鋼鐵工業、造船工業、陶瓷工業、制革工業水廠都能使用。
感謝您訪問我們揚子江泵業的網站www.www.81198.cc,如有任何水泵疑問我們一定會盡心盡力為您提供優質的服務。
- 下一篇:氣動隔膜泵零部件材質選用配置
- 上一篇:磁力泵零部件結構圖分析







